Find flere tvangsauktioner på  
  • Ny tvangsauktion Tirsdag 17-02-2026 13:00

  • Retten i Odense , Tinghusgården, Tinghusgården, Albanigade 30, 2, 5000 Odense C
  • Journalnr. 43287-0003 /mn,
  • Rettens AS nr. AS 375/2025
Ny tvangsauktion
Højeste bud 1. auktion kr. 200.000

Bemærk vedr. Ny tvangauktion:

Tinglyst areal:

Matr.nr. 15a Hjærup By, Kerte: 3.505 m², heraf vej 0 m².

Matr.nr. 16b Hjærup By, Kerte: 4.801 m², heraf vej 0 m².


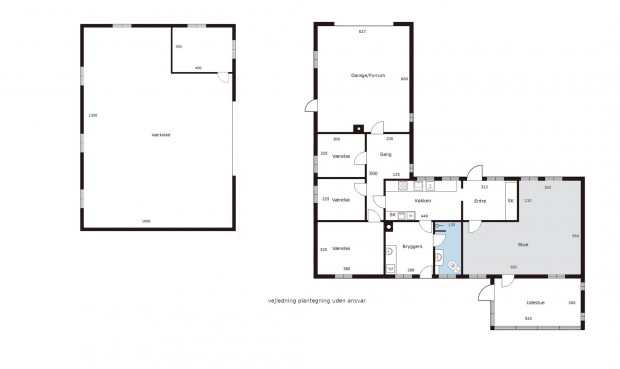
Fritliggende enfamilieshus.

Oplysninger ifølge BBR: Opført i 1880. Bebygget areal 110 m². Boligareal 110 m². Bygning 2: udhus, opført i 1880 med et bebygget areal på 50 m². Bygning 3:  udhus/værksted, opført i 1988 med et bebygget areal på 140 m².

Ejendommen er opført i sort bindingsværk med hvidmalede tavl. Tag er af sorte tagplader.

Ejendommen er indrettet med entré med adgang til vinkelstue og til køkken. Fra vinkelstue er der udgang til havestue. Køkken er med lyse elementer og grå laminatbordplade samt adgang til bryggers og fordelingsgang. Bryggers er med lyse gulvklinker, elementer i træ med grå laminatbordplade, udgang til overdækket terrasse samt adgang til badeværelse. Badeværelse er med lyse elementer med hvid håndvask samt med brune gulvklinker. Fra fordelingsgang er der adgang til to værelser, et soveværelse samt til fyrrum/garage, som er placeret i bygning 2.

Der er registeret følgende hvidevarer: vaskemaskine mrk. Whirlpool, køleskab mrk. Gram, komfur mrk. Voss, indbygget kogeplade mrk. ukendt, opvaskemaskine mrk. Wasco.

Ejendommen fremstår i sin helhed velholdt.

Ifølge BBR opvarmes ejendommen med centralvarme fra eget fyr samt med varmepumpe.

Jf. Ejendomsdatarapporten af 18.11.2025 side 12 er der registreret en olietank på ejendommen.
Jf. Ejendomsdatarapporten af 18.11.2025 side 43 er ejendommen beliggende indenfor en skovbyggelinje.
Til ejendommen hører en anlagt have med græs, træer, buske, samt et stykke skovareal beplantet med nåletræer.

Denne beskrivelse er udarbejdet på baggrund af ikke fagkyndig besigtigelse foretaget den 24.11.2025.
Beskrivelsen er endvidere udarbejdet på baggrund af BBR-meddelelse, ejendomsdatarapport, tingbog og øvrige offentlige oplysninger. Rekvirenten indestår på ingen måde for rigtigheden af disse oplysninger.

  • Beboelsesejendom
  • Byggeår 1880
  • Værelser 5
  • Bolig 110 m²
  • Grund 8.306 m²
  • Kælder 0 m²
  • Etager 0
  • Erhverv 0 m²
  • Ejendomsværdi kr. 700.000
  • Grundværdi kr. 209.600
  • Annonceret: 23-01-2026
Matrikel nr.
  • 15a, Hjærup By, Kerte
  • 16b, Hjærup By, Kerte
Rekvirent
v/advokat Flemming Hartvig Pedersen
E-mail: mn@focus-advokater.dk
Finansiering
  • Ved auktionsbud kr. 700.000
  • Størstebeløbet kr. 55.000
  • Sikkerhedsstillelse kr. 73.000
  • Salgsopstillingen kan bestilles hos rekvirenten, Retten i Odense eller downloades herunder.