Find flere tvangsauktioner på  
  • Tvangsauktion Torsdag 30-04-2026 09:00

  • Retten i Sønderborg, Retssal 2, Stationsvej 10, 6400 Sønderborg
  • Journalnr. 9400-3745,
  • Rettens AS nr. AS 6-26/2026
Besigtigelse Torsdag 23-04-2026 15:00 Tilmeld besigtigelse

Strandelhjørn Bygade 18A

Ejendommen er et nedlagt landbrug med et tinglyst areal på 14382 m2, heraf vej 0 m2. Ejendommen er noteret som en landbrugsejendom og bærer navnet Rhodesminde.

 

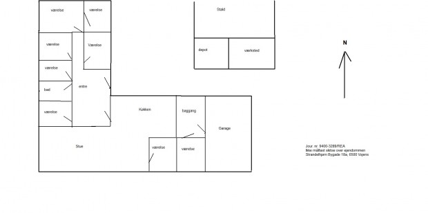
Ejendommen består ifølge BBR af 2 bygninger, et fritliggende enfamiliehus (bygningsnr. 1) og et udhus (bygningsnr. 5).

 

Bygningsnr. 1 er opført i 1860 i mursten og med stråtag. Den har et bebygget areal iflg. BBR på 256 m2. Det samlede boligareal udgør 256 m2.

 

Ved besigtigelsen af ejendommen kunne det konstateres, at taget er et eternittag og ikke længere et stråtag.

 

Huset er indrettet med entre, køkken, alrum og stue uden adskillelse, gang, 8 værelser, baggang/fyrrum og badeværelse. Fra baggang/fyrrum er der adgang til garage med 2 porte.

 

Der er træloft i alle rum.

 

Der er klinker på gulvet i entre, køkken, alrum og badeværelse. Øvrige rum er med trægulve.

 

På besigtigelsestidspunktet var der følgende hårde-/hvidevarer til stede i køkkenet:

nedfældet kogeplads til flaskegas mrk. ukendt, indbygningsovn mrk. ukendt, emhætte mrk. ukendt, opvaskemaskine mrk. Zanussi, køleskab mrk. ukendt.

 

Ejendommen opvarmes via centralvarme til fast brændsel.

Vandforsyning: privat vandforsyningsanlæg.

Afløbsforhold: Separatkloakeret: spildevand + tag- og overfladevand

 

Bygningsnr. 5 er et udhus (tidligere svinestald) opført i 1980 i mursten med tag af fibercement (herunder asbest). Bebygget areal iflg. BBR 450 m2.

Bygningen er indrettet som hestestald med hestebåse samt værksted og depot.

 

Iflg. BBR er der følgende bemærkninger for grund:

Vindmølle opført i 1985

Aljebeholder 25 m3

Pladsbelægning 16 m3

Kornsilo 46 m3

 

 

Fremvisning af ejendommen afholdes torsdag den 23. april 2026 kl. 15:00– Bemærk, at tilmelding er påkrævet senest kl. 12 dagen inden besigtigelsen. Du skal angive dit navn, telefonnummer og e-mail. Er der ingen tilmeldinger forbeholdes det at aflyse fremvisningen.

 

Det præciseres, at ovennævnte oplysninger delvist er baseret på offentlige registre (BBR-udskrift) samt besigtigelse den 23. marts 2026. Offentlige registre kan indeholde fejl, hvorfor der ikke indestås for oplysningernes rigtighed, og hverken fogeden, rekvirenten eller dennes repræsentant kan drages til ansvar for eventuelle fejl. Interesserede købere opfordres derfor til selv at besigtige ejendommen på den planlagte fremvisningsdato.

 

Fra og med 2018 er stigning i grundskyld "indefrosset" som lån, der forfalder i tilfælde af ejerskifte. En auktion betragtes i den forbindelse efter rekvirentens opfattelse som et ejerskifte i relation til lånet. Lånet er ikke tillagt fortrinsret, men i det omfang sælger ikke indfrier lånet, så har kommunen mulighed for at henholde sig til ejendommen og derved reelt pålægge auktionskøber udgiften. Udgiften er derfor medtaget i størstebeløbet og udgør for årene 2019-2023 i alt 4.658,45.

 

OBS: DET BEMÆRKES, AT TVANGSAUKTIONEN IKKE ER MOMSPLIGTIG

 

DET BEMÆRKES TILLIGE, AT REKVIRENTSALÆRET VIL BLIVE REGULERET I OPADGÅENDE RETNING I DET OMFANG, BUDSUMMEN OVERSTIGER DEN OFFENTLIGE EJENDOMSVÆRDI 

|

  • Villa
  • Byggeår 1860
  • Værelser 7
  • Bolig 256 m²
  • Grund 14.382 m²
  • Kælder 0 m²
  • Etager 0
  • Erhverv 0 m²
  • Ejendomsværdi kr. 1.556.000
  • Grundværdi kr. 325.000
  • Annonceret: 31-03-2026
Matrikel nr.
  • 17, Strandelhjørn, Bevtoft
Rekvirent
v/advokat Mark Søtrup
E-mail: bml@kirklarsen.dk
Finansiering
  • Ved auktionsbud kr. 1.556.000
  • Størstebeløbet kr. 84.888
  • Sikkerhedsstillelse kr. 225.904
  • Salgsopstillingen kan bestilles hos rekvirenten, Retten i Sønderborg eller downloades herunder.